رعايه الحيوان علم وفن
الإنشاءات فى مزارع الألبان 11
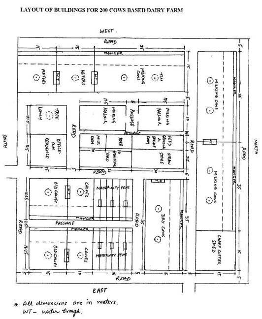
والآن وبعد ان قدمنا للخطوط العريضه والنقاط الأساسيه لإنشاء مزرعه الألبان فان محتوى مزرعه الألبان سوف يشتمل على الأتى
* حظائر الابقار الحلابه ( حديث الولاده , الحلاب العالى الادرار , حظائر الابقار منخفضه الادرار )
* حظائر الابقار الجافه ( حظائر الجفاف المبكر, حظائر انتظار الولاده )...
* حظائر العزل ( التهاب الضرع , والتهاب الحافر ,والحيوانات تحت العلاج غير مصابه بما سبق )
* خزان مياه الشرب
* مبنى المحلب
* حظائر النتاج الذكور والإناث
* حظائر النتاج المفطوم
* منطقه تربيه العجول الرضيعه
* مركز التغذيه وتجهيز العلائق
* بنكر السيلاج
* مكان تخزين الدريس
* مظله حفظ خامات العلف
* خزان صرف المحلب
* خزان صرف المزرعه
* خزان صرف المحلب
قد يختلف الرسم الاولى للمزرعه طبقا لأسلوب التربيه وامكانيات المربى وعدد القطيع المراد تربيته وهناك اكثر من شكل
يحتوى على ما سبق طبقا لعدد الحيوانات الذى يحدد عدد الحظائر ولكى نصل الى تحديد عدد الحظائر فى كل نظام يجب ان نعلم بعض الأرقام من واقع التربيه فى مصر والتى قد تذيد او تقل قليلا طبقا للفترة بين ولادتين لكل بقره ولان فى مصر وطبقا للأجواء الحاره فان الفتره بين ولادتين تتراوح ما بين 14:13 شهرا كما ان الولادات موسميه حيث ُيذيد عدد الحلاب فى الشتاء بدءاً من شهر سبتمبر وحتى مايو تصل الى اعلى رقم من الابقار الحلابه خلال شهر مارس ويكون الابقار الجافه فى شهر مارس هى اقل عند خلال السنه
* فى موسم الشتاء يكون الابقار الحلابه حوالى 95 % من القطيع ويكون الجفاف حوالى 5%
* فى موسم الصيف يكون الجفاف اعلى ما يمكن قد يصل الى 20% ويصبح الحلاب 80%
ولتحديدي عدد الحظائر للحلاب نعد انفسنا للرقم الأكبر وهو 95% من القطيع , وكذالك حظائر الجفاف نعد انفسنا بعد من الحظائر لأكبر عدد من الجفاف وهو 20%
نحدد عدد نقاط المحلب الذى يستطيع حلب الابقار حيث تحلب كل نقطه حليب 25 فى الحلبه على ان لايقل عدد الابقار الحلابه عن 145 بقره فى الساعه فى المحلب
بمعنى اخر فانه يمكن حساب قدره نقطه الحليب سوف تحلب من 6:5 بقرات فى الساعه طبقا لمستوى الانتاج فى المتوسط
وعلى ان يكون عدد الابقار فى الحظيره ألواحده ضعف او ثلاث مرات عدد نقاط الحليب فى المحلب بعد حسابها
الإنشاءات فى مزارع الألبان 11
والآن وبعد ان قدمنا للخطوط العريضه والنقاط الأساسيه لإنشاء مزرعه الألبان فان محتوى مزرعه الألبان سوف يشتمل على الأتى
* حظائر الابقار الحلابه ( حديث الولاده , الحلاب العالى الادرار , حظائر الابقار منخفضه الادرار )
* حظائر الابقار الجافه ( حظائر الجفاف المبكر, حظائر انتظار الولاده )...
* حظائر العزل ( التهاب الضرع , والتهاب الحافر ,والحيوانات تحت العلاج غير مصابه بما سبق )
* خزان مياه الشرب
* مبنى المحلب
* حظائر النتاج الذكور والإناث
* حظائر النتاج المفطوم
* منطقه تربيه العجول الرضيعه
* مركز التغذيه وتجهيز العلائق
* بنكر السيلاج
* مكان تخزين الدريس
* مظله حفظ خامات العلف
* خزان صرف المحلب
* خزان صرف المزرعه
* خزان صرف المحلب
قد يختلف الرسم الاولى للمزرعه طبقا لأسلوب التربيه وامكانيات المربى وعدد القطيع المراد تربيته وهناك اكثر من شكل
يحتوى على ما سبق طبقا لعدد الحيوانات الذى يحدد عدد الحظائر ولكى نصل الى تحديد عدد الحظائر فى كل نظام يجب ان نعلم بعض الأرقام من واقع التربيه فى مصر والتى قد تذيد او تقل قليلا طبقا للفترة بين ولادتين لكل بقره ولان فى مصر وطبقا للأجواء الحاره فان الفتره بين ولادتين تتراوح ما بين 14:13 شهرا كما ان الولادات موسميه حيث ُيذيد عدد الحلاب فى الشتاء بدءاً من شهر سبتمبر وحتى مايو تصل الى اعلى رقم من الابقار الحلابه خلال شهر مارس ويكون الابقار الجافه فى شهر مارس هى اقل عند خلال السنه
* فى موسم الشتاء يكون الابقار الحلابه حوالى 95 % من القطيع ويكون الجفاف حوالى 5%
* فى موسم الصيف يكون الجفاف اعلى ما يمكن قد يصل الى 20% ويصبح الحلاب 80%
ولتحديدي عدد الحظائر للحلاب نعد انفسنا للرقم الأكبر وهو 95% من القطيع , وكذالك حظائر الجفاف نعد انفسنا بعد من الحظائر لأكبر عدد من الجفاف وهو 20%
نحدد عدد نقاط المحلب الذى يستطيع حلب الابقار حيث تحلب كل نقطه حليب 25 فى الحلبه على ان لايقل عدد الابقار الحلابه عن 145 بقره فى الساعه فى المحلب
بمعنى اخر فانه يمكن حساب قدره نقطه الحليب سوف تحلب من 6:5 بقرات فى الساعه طبقا لمستوى الانتاج فى المتوسط
وعلى ان يكون عدد الابقار فى الحظيره ألواحده ضعف او ثلاث مرات عدد نقاط الحليب فى المحلب بعد حسابها











ليست هناك تعليقات:
إرسال تعليق